Pasadena Zoning Ordinance for Multi-Family Housing – Generative Sequence for Apartment Buildings: Photographs of drawings
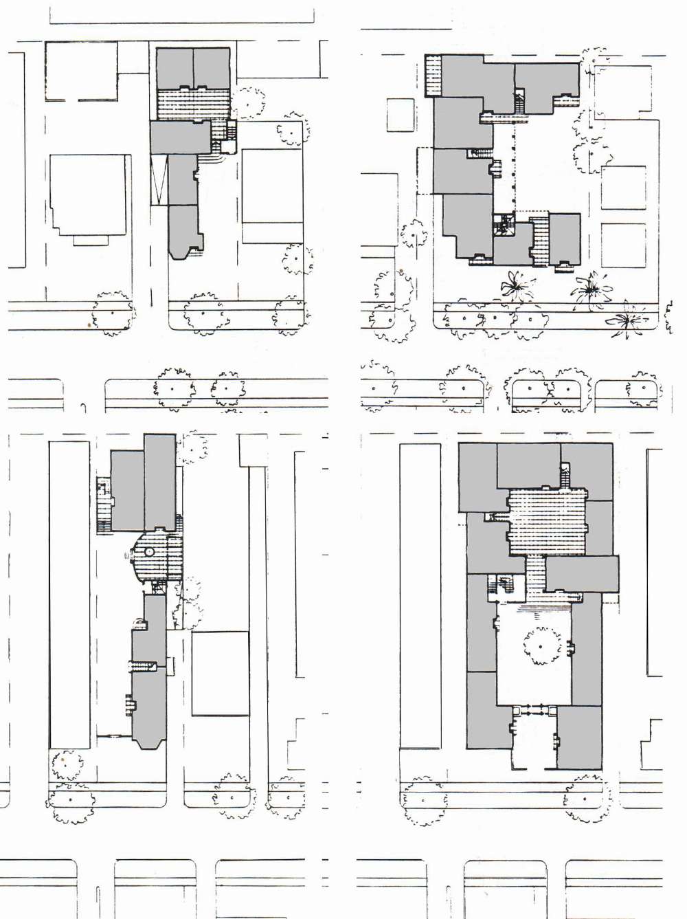
2) Higher density areas – Four apartment building plans generated by the sequence, in different conditions
Pasadena Zoning Ordinance for Multi-Family Housing – Generative Sequence for Apartment Buildings: Photographs of drawings
2) Higher density areas – Four apartment building plans generated by the sequence, in different conditions